有原图

有原图

有原图

有原图

有原图

有原图

有原图

有原图

有原图

有原图

有原图

有原图

有原图

有原图

有原图

有原图

有原图

有原图

有原图

有原图

有原图

有原图

有原图

有原图

有原图

有原图

有原图

有原图

原帖地址:【链接登录后可见】
447338
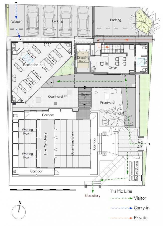
基地位于街区的东北角,基地的北侧面对着学校操场和孩子们的公园。由于不恰当的扩建和绿化,这一区域的通风极其不好,且对于一座宗教场所来说,此地过于脏乱了些。庙宇的主殿在二战空袭中被摧毁,战后新的主殿在旧址上伫立起来,成为和平时代的象征,但由于当时物资匮乏,重
【查看更多内容请登录哈】